Kapitalanleger gesucht ! 2 - Zimmer-ETW in Garbsen-Mitte Fahrstuhl aus Tiefgarage, Loggia + Terrasse

  • Objekt-Nr531
  • Zimmer
    2.00
  • Wohnfläche
    78.26 m²
  • Kaufpreis
    215.000 €

Objektangaben

Baujahr
1995
Wohnfläche
78.26 m²
Zimmer / Räume
2
Nutzungsart
Wohnen
Vermarktungsart
Kauf
Postleitzahl
30823
Ort
Garbsen
Provisionspflichtig
Ja
Courtage
3,57 % inkl. MwSt. Zahlbar von Verkäufer und Käufer nach § 656c BGB

Ausstattung

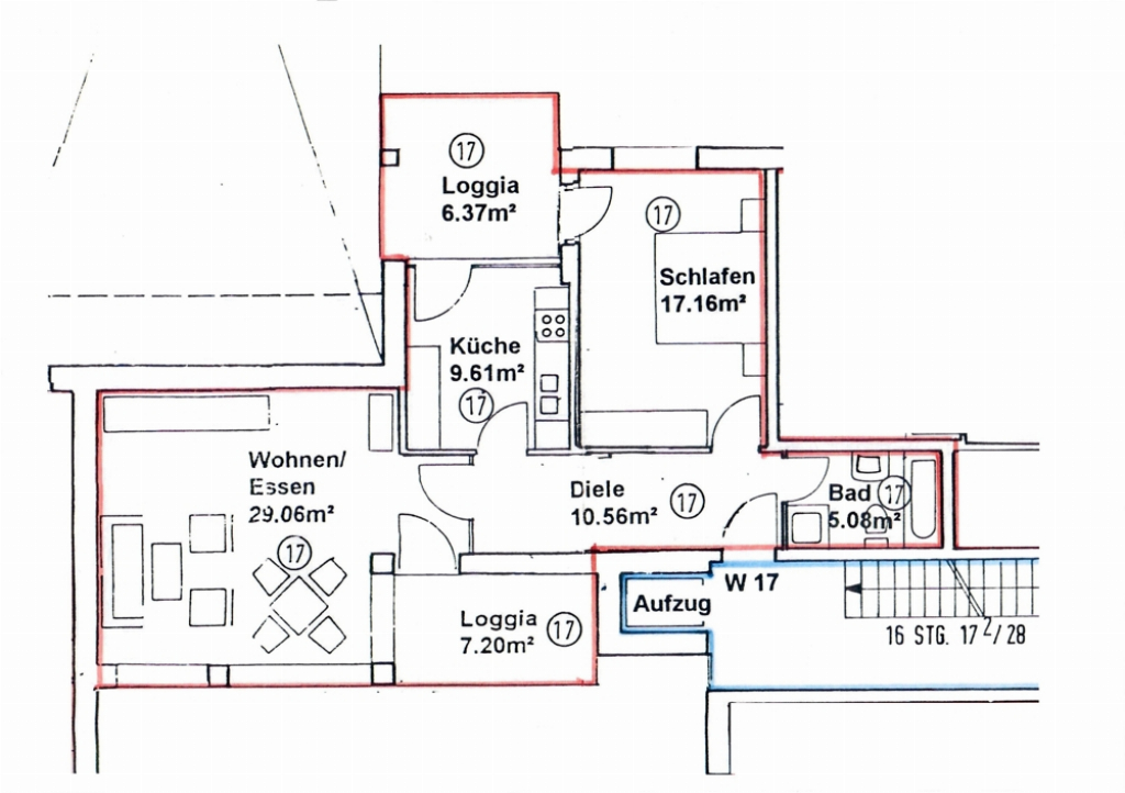
- Wohnzimmer mit Laminat
- Schlafzimmer und Küche mit Loggiazugang
- überdachter Balkon und Terrasse (Loggia)
- Wannen-Dusch-Bad
- Kellerraum
- PKW-Außenstellplatz
- Gemeinschaftswaschkeller
- Gemeinschaftsfahrradkeller

Badezimmer
1
Schlafzimmer
1

Objektbeschreibung

Es erwartet Sie eine gut geschnittene vermietete Zweizimmerwohnung im Erdgeschoss eines Mehrparteienhauses in Garbsen-Mitte. Vom Schlafzimmer und der Küche gelangen Sie auf den überdachten Balkon. Die Wohnung beinhaltet ein innenliegendes Wannen-Dusch-Bad. Das Wohnzimmer ist zum Süden ausgerichtet und verfügt über eine schöne Loggia als Terrasse.
Ein Kellerraum und ein PKW-Außenstellplatz runden das Angebot ab. Zusätzlich sind Gemeinschaftskellerräume für die Wäsche und die Unterbringung von Fahrrädern vorhanden.
Das monatliche Hausgeld geläuft sich auf 400,06 € inkl. der Instandhaltungsrücklage von monatlich 28,69 €.

Aus Diskretionsgründen werden keine Bilder aus der Wohnung veröffentlicht.

Sonstiges

Durch schriftliche Vereinbarung oder Inanspruchnahme unserer Maklertätigkeit kommt der Makler-Vertrag zustande. 3,57 % Käufer-Provision inkl. MwSt. vom beurkundeten Kaufpreis, verdient und fällig mit notarieller Beurkundung des Kaufvertrages. Wir haben einen provisionspflichtigen Maklervertrag in gleicher Höhe mit dem Verkäufer abgeschlossen (§656c BGB).

Haben wir Ihr Interesse geweckt? Dann bewerben Sie sich auf dieses Objekt und stellen uns über das Kontaktformular eine Anfrage und fordern für weitere Details das Exposé an.
Bitte geben Sie nachfolgende Identifikationsmerkmale bekannt:

⇒ vollständiger Vor- und Zuname
⇒ aktuelle Anschrift
⇒ aktuelle Telefonnummer
⇒ aktuelle E-Mail-Anschrift

Sofern ein Identifikationsmerkmal nicht hinterlegt ist, geben wir keine Gewähr für eine Übersendung eines Exposés.
Nach Ihrer Durchsicht des Exposés kontaktieren Sie uns bitte erneut für einen Besichtigungstermin.

Lage

Die Wohnung befindet sich in Garbsen-Mitte in bevorzugter Lage. Das Stadtzentrum, Geschäfte zur Deckung des Grundbedarfes, Arztpraxen und diverse Schulen befinden sich in fußläufiger bzw. Radfahrnähe.

Kontakt

gültig bis
2029-01-28
Primärenergieträger
FERN
Wertklasse
C
Baujahr
1995
Gebäudeart
Wohnung/Wohnhaus
ZURÜCK DRUCKEN
Rückruf gewünscht
Was ist die Summe aus 5 und 9?
* Pflichtfelder