Sehr gepflegte Doppelhaushälfte im Bungalowstil mit Hausgarage, Garage und schönem Garten in Osterwald O.E.
- Objekt-Nr525
- Zimmer4.00
- Wohnfläche115.00 m²
- Grundstückfläche579.00 m²
-
Kaufpreis390.000 €
Objektangaben
Ausstattung
Doppelhaushälfte im Bungalowstil
moderne Ausstattung in Küche und Bäder
im Wohnbereich Stäbchenparkett
ebenerdige Dusche im Erdgeschoss
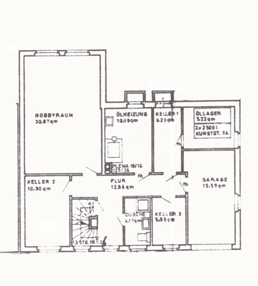
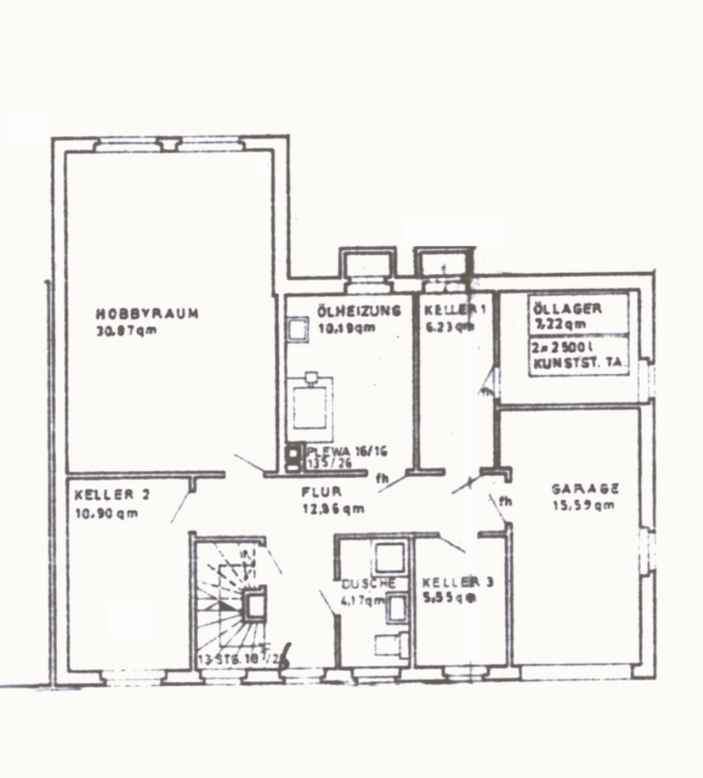
voll unterkellert und mit Tageslicht-Duschbad
gepflegter Gartenbereich
2 Garagen
ruhige Wohnlage in einer Sackgasse
Objektbeschreibung
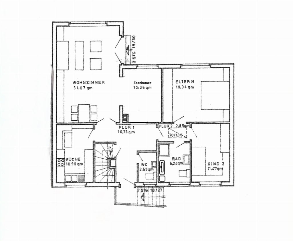
Diese äußerst gepflegte Doppelhaushälfte präsentiert sich auf einem weitläufigen Grundstück von ca. 579 m² und bietet eine großzügige Wohnfläche von ca. 115 m². Mit insgesamt vier Zimmern, darunter zwei gemütliche Schlafzimmer, eignet sich dieses Haus perfekt für Familien oder Paare, die neben ausreichend Raum auch Wert auf Komfort und Stil legen.
Ein lichtdurchflutetes Wohnzimmer vermittelt ein warmes und einladendes Ambiente, von dem aus Sie direkten Zugang zur großzügigen Terrasse haben, wie auch vom Schlafzimmer und Kinderzimmer – ideal für entspannte Sommerabende oder gesellige Grillfeste. Die moderne Küche bietet ausreichend Platz für kulinarische Kreationen und grenzt an einen separaten Essbereich.
Das elegant gestaltete Badezimmer wird durch ein zusätzliches Gäste-WC ergänzt, um den Komfort für Besucher zu gewährleisten. Der besonders schön hergerichtete Kellerbereich bietet zusätzliche Gestaltungsmöglichkeiten, sei es als Hobbyraum, Fitnessbereich oder zusätzliche Lagerfläche.
Diese Doppelhaushälfte vereint modernes Wohnen mit gemütlichem Flair und ist in einem sehr gepflegten Zustand. Entdecken Sie die Vielseitigkeit und den Charme dieser Immobilie und lassen Sie sich von ihrem einzigartigen Charakter verzaubern!
Sonstiges
Durch schriftliche Vereinbarung oder Inanspruchnahme unserer Maklertätigkeit kommt der Makler-Vertrag zustande. 3,57 % Käufer-Provision inkl. MwSt. vom beurkundeten Kaufpreis, verdient und fällig mit notarieller Beurkundung des Kaufvertrages. Wir haben einen provisionspflichtigen Maklervertrag in gleicher Höhe mit dem Verkäufer abgeschlossen (§656c BGB).
Haben wir Ihr Interesse geweckt? Dann bewerben Sie sich auf dieses Objekt und stellen uns über das Kontaktformular eine Anfrage und fordern für weitere Details das Exposé an.
Bitte geben Sie nachfolgende Identifikationsmerkmale bekannt:
⇒ vollständiger Vor- und Zuname
⇒ aktuelle Anschrift
⇒ aktuelle Telefonnummer
⇒ aktuelle E-Mail-Anschrift
Sofern ein Identifikationsmerkmal nicht hinterlegt ist, geben wir keine Gewähr für eine Übersendung eines Exposés.
Nach Ihrer Durchsicht des Exposés kontaktieren Sie uns bitte erneut für einen Besichtigungstermin.
Lage
Die Ortschaft Osterwald ist in Unterende und Oberende eingeteilt. Im Zentrum von Osterwald finden Sie
Einkaufsmöglichkeiten für den täglichen Bedarf, Ärzte und eine Apotheke und ein Restaurant. Desweiteren
sind Supermärkte, Bäckereien und Fleischereien, Banken, Kindergärten und eine Grundschule vor Ort bzw.
in den Nachbargemeinden auch weiterführende Schulen.
Von Osterwald fährt regelmäßig die Buslinie zur Enthaltestelle der Straßenbahn nach Garbsen und von dort direkt in die Landeshauptstadt Hannover. In wenigen Minuten erreichen Sie die Bundesstraße 6 in Richtung Hannover und Nienburg, die Autobahn A2 und die A 352, somit ist schneller Anschluß in alle
Himmelsrichtungen vorhanden.
Ebenso ist der Flughafen Hannover-Langenhagen schnell erreichbar.
Die Universitätsstadt Garbsen vor den Toren der Landeshauptstadt bietet vielfältige Möglichkeiten zur Freizeitgestaltung,
z. B. durch den Blauen See und den Golfplatz in Altgarbsen.
Kontakt
